Środa Śląska z dofinansowaniem KPO - powstanie staw retencyjny i teren rekreacyjny
Bardzo cieszymy się, że nareszcie możemy zdradzić szczegóły dużego projektu, który Gmina Środa Śląska będzie realizować w najbliższych latach.
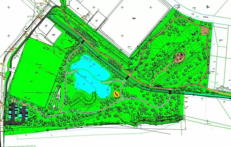
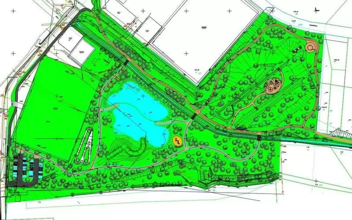
Okazją do tego jest przyznane w tym tygodniu dofinansowanie w wysokości 3,2 mln zł z Krajowego Planu Odbudowy, które przeznaczone zostanie na budowę stawu retencyjnego przy ul. Górnej, w bezpośrednim sąsiedztwie Kajaków. Nasz projekt znalazł się wśród 10 najwyżej ocenionych w województwie dolnośląskim.
Zbiornik o powierzchni ok. 0,5 ha i głębokości do 3 m będzie zasilany wodami opadowymi i gruntowymi. Jego głównym zadaniem będzie retencja wody i ograniczanie ryzyka podtopień. Projekt zakłada również nasadzenia drzew, nowe trawniki oraz ukształtowanie terenu w sposób naturalny i przyjazny środowisku. Ten etap inwestycji zakończy się jeszcze w tym roku.
To jednak dopiero początek większych zmian w tej okolicy. W kolejnych latach planujemy m.in.: utworzenie ścieżek pieszo-rowerowych z kładkami nad Rokitnikiem, rewitalizację terenu po dawnej piaskowni - w tym miejsce na ognisko i wieżę widokową, nowe chodniki i parking przy boisku.
Poniżej zamieszczamy mapę z planowanym zagospodarowaniem terenu, która pozwoli Wam wyobrazić sobie, jak ten fragment miasta zmieni się w najbliższych latach.
Będzie to idealny teren rekreacyjny, z zachowaniem przyrodniczych walorów tego miejsca - mamy nadzieję, że projekt spotka się z zainteresowaniem i sympatią mieszkańców.
Miasto i Gmina Środa Śląska
